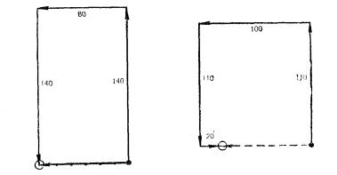
пятидневную рабочую неделю. Это произошло в VII классе, когда на новой методической основе ребята стали изучать алгебру, геометрию, физику, химию, географию и историю. Вот такой стала история с географией! Вторым выходным днем у ребят по рекомендации гигиенистов стал четверг. И нужно было видеть, с какой завистью проходила вся школа в четверг мимо закрытых дверей VII экспериментального класса. Попутно отметим, что ребята 28-й школы второго выходного дня так пока и не получили - за счет одних только уроков географии такого выигрыша во времени получить невозможно, даже если изучается курс экономической географии. А бесконечная чехарда с администрацией, начавшаяся в этой школе по не имевшим к экспериментальной работе причинам, не дала возможности педагогическому коллективу глубоко и серьезно заняться новым делом. Работу в школе продолжила и продолжает одна только Майя Семеновна. В книге отзывов приезжающих, которую она ведет, тысячи восторженных записей, на семинары в 28-ю едет вся страна, готовится к изданию книга М. С. Винокур, но у нее нет даже возможности реализовать получаемую экономию во времени - куда ее обратить? Правда, теперь курс изучается более глубоко, и на географию тянутся теперь ученики из соседних школ, но это все же частное следствие. К глазной цели еще нужно будет идти.  Не спеши делом, торопись мыслью! Теплый осенний вечер. Над головой - россыпь звезд, а вдали у горизонта полыхает зарево большого города. Во все стороны, куда ни пойди,- степь. - Север - 140 м, запад - 80 м, юг - 140 м.- Голос учителя спокойный, строгий. Дается игровое задание.- Еще раз: север - 140, запад - 80, юг - 140. Мальчик поворачивается, находит главный ориентир - Полярную звезду и уходит в ночь. Там, в конце заданного ему маршрута, он воткнет в землю деревянный, специально приготовленный для игры колышек, на гладком срезе которого написана его фамилия. Условия игры были объявлены еще днем, в классе. Каждый знает, что конец маршрута - это контрольная точка, которую определили днем на основании точных измерений с помощью рулетки, что эта точка помечена и завтра, на рассвете, учитель определит отклонение колышка от истинной точки - конца маршрута. В итоге будут выявлены победители. Длина собственного шага известна каждому - измерения и контрольные проверки проводились несколько раз в связи с другими играми, в которых нужно знать длину шага. В то время когда указывался маршрут первому ученику, остальные стояли поодаль. Затем подошел следующий. - Запад -150 м, север-80 м, восток-150 м. Это новый маршрут с выходом на новую контрольную точку. Для проведения игры вполне достаточно трех контрольных точек - по двум причинам. 1. На каждую контрольную точку можно выйти несколькими несхожими маршрутами. Так, на первую точку можно выйти по другому заданию: север - 110м, запад - 100 м, юг - 110 м, восток - 20 м. В этом маршруте дополнительная сложность - один поворот, но зато он на 30 м короче, что компенсирует итоговое отклонение. 2. На каждую контрольную точку ученики отправляются с интервалом в несколько минут, и этого вполне достаточно, чтобы впереди идущий ушел достаточно далеко. По этой причине на один и тот же маршрут можно направить 5-6 человек. Итоги игры непременно освещаются очередной географической "молнией", но после этой игры никаких "молний" обычно не бывает. А бывает... - Вчера два пятых класса приняли участие в игре с ночным ориентированием на Полярную звезду. Из 72 участников вышли на контрольные точки с отклонением до 20 м только 19 человек. Если учесть сложность ориентирования, то этот результат можно было бы считать неплохим и отметить в нашей "молнии" трех победителей. Но давайте подумаем вместе: можно ли назвать победителем того ученика, который прошагал по ночной степи 360 м, сделал при этом два поворота, не сводил глаз с Полярной звезды и ни разу не задумался над тем, что он делает? От него требовалось только одно: выйти на контрольную точку, а какой дорогой он пойдет, никого не интересовало. Этого вообще никто не видел - какая была тьма, вы отлично помните. Но ведь если призадуматься, то выйти на контрольную точку можно было гораздо проще! Вместо того чтобы идти по маршруту: север - 140 м, запад - 80 м, юг - 140 м, достаточно было сразу повернуться на запад и пройти всего 80 м. Посмотрите на план вашего вчерашнего маршрута, и вам станет неловко за все, что вы делали вчера (см. с. 146). Ребята сидят оглушенные. У них даже нет желания выяснять, кто же вчера все-таки был ближе всех к цели. Оказывается, нельзя приступать к делу, не осмыслив его всесторонне, не определив по возможности наиболее изящные пути выполнения задачи. Теперь это не просто установка на очередную игру. Это установка на всю жизнь. Включение этой и других игр (о некоторых речь пойдет дальше) стало возможным только благодаря "второму образованию", не имеющему никакого отношения к программе физико-математического факультета педагогического института, и это уже информация к размышлению о необходимости обширного поля знаний для учителя и любого специалиста. Композитор А. П. Бородин шутил, что он лучший композитор среди химиков и лучший химик среди композиторов. Обширные знания в области химии не мешали ему создавать вечные музыкальные произведения. Великий Фарадей, кроме всего прочего, был отличным переплетчиком и не оставлял этого дела до конца дней жизни. Последнее, что он сделал перед самой своей смертью,- переплел все свои научные труды. А уж если вспомнить о "первом русском университете" - М. В. Ломоносове, то для его необъятного таланта вообще не остается места в классификации тех, кто ратует за раннюю специализацию школьников. Таких примеров - тысячи и тысячи. Уточним: игра, о которой только что шла речь, вовсе не игра. Это программная практическая работа на местности. В традиционных условиях ее обычно выполняют так: выходят вечером на школьный стадион, показывают на небесной сфере Большую Медведицу, потом Полярную звезду и Малую Медведицу, потом... Потом расходятся по домам, и в плане работы рядом с темой "Ориентирование по Полярной звезде" ставится птичка, а на следующий день делается соответствующая запись в классном журнале.  "Найдите меня!" Лес этот небольшой. По периметру не более 6 км. Со всех сторон его опоясывают дороги. Выйди на любую из них - и до дома рукой подать. Для игр - раздолье. - В конверте, который сейчас получил староста класса, азимутальная трехходовка. Общая длина хода - 1700 м. В конечной точке маршрута буду находиться я. Обнаружить меня можно будет только в том случае, если отклонение составит не более 10 м. Маскировка будет грубой, но достаточно хитрой. Конверт вскрыть ровно через одну минуту. Найдите меня! К этому инструктажу не бывает никаких дополнительных пояснений. Они не нужны: идет заключительная часть большой игры. Это не урок. Это воскресный выход в лес. Ребята в лесу уже более трех часов. За это время они вдоволь наигрались в лапту, определили чемпиона проворства, провели забеги на приз "Один из десяти"10 и разыграли множество других призов. А между этими "просто играми" сначала на открытой поляне научились находить азимуты направлений, затем по азимуту и дистанциям выходить на контрольные точки. В этих упражнениях победители не фиксировались, но в двух последующих - трехходовке на открытой местности и двухходовке на закрытой - были названы первые чемпионы. К последней игре "Найдите меня!" ребята уже были полностью готовы. Детские голоса рассыпались по лесу. Одни, чувствуется по всему, ушли далеко в сторону, другие, неторопливые в действиях, поотстали, а самые шустрые - вот они! Пристально вглядываясь в каждый кустик и неслышно шевеля губами (шаги считает), быстро приближается Маринка. Заметила, улыбнулась, но, не замедляя шага, ушла вперед. Она первая, это понятно. Теперь пусть другие найдут. Чуть в сторонке остановился Олег. Он уже вышел на свою конечную точку, вырвал клок травы, положил на ветку (место заметил) и пошел по спирали вокруг этой точки. Здесь тоже все понятно: от него уже никуда не деться - найдет... И эта игра, как и предыдущая, тоже пришла из школы топографов, только там ее проводили зимой после снегопада. В тайге прятали предметы, а курсанты получали азимутальные ходы, когда снегом засыпало все следы руководителя группы, готовившего полигон к игре. В программе V класса по географии предусмотрена только одна небольшая работа: определение азимутов точек. Но разве можно замыкаться в рамках программы, если в распоряжении учителя есть возможность превратить однообразный урок в многокрасочную, увлекательную игру! А воскресный день? Ну и что? Разве для учителя прогулка в лесу в окружении своих учеников - это не самый лучший отдых? Для того чтобы отдыхать в играх с Детьми, необходимо очень многое знать и уметь. Быстрое переключение игровых ситуаций, абсолютное владение игровыми реквизитами и некоторое превосходство в умениях перед учениками - всеми этими качествами учитель должен овладевать еще на студенческой скамье. И тогда для него самого игра станет хорошим отдыхом. Утомляют не игры (физическая усталость в радость организму!), а однообразные походы, насквозь пронизанные бесконечными назидательно-докучливыми одергиваниями, запретами и окриками.  "Найдите середину!" Отметим весьма существенную деталь. Начинать игры необходимо не на поляне и не в лесу, а еще в дороге. Иначе дети выйдут из-под контроля уже до первого привала. От конечной остановки троллейбуса до виднеющегося на горизонте леса - 3 км, а между ними поле. - Справа, у дороги, большой куст. Кто не видит? Видят все. - Остановиться на середине расстояния между этой точкой и кустом. Движение произвольное. Учитель с шагомером уходит последним. Вот он подошел к крайнему остановившемуся, полагающему, что середина найдена, и сообщает ему результат: 266 шагов. Так расстояние от начальной точки до своей середины узнает каждый ученик. Вторую половину все идут, внимательно вслушиваясь в открытый счет учителя, и каждый его шаг кого-то приближает к победе, кого-то - к поражению. Где уж там оглядываться по сторонам! Нет дела даже до созревающих шляпок подсолнечника на чужих огородах. И в этом тоже свой тайный смысл: не приходится ни запрещать, ни прибегать к строгим мерам. Такие вот мелкие детали тоже нельзя упускать из виду.  Живые нивелиры В курсе математики есть практическая работа по измерению высоты предмета с помощью равнобедренного прямоугольного треугольника. Прямым визированием по его гипотенузе находят точку, из которой видна вершина предмета. Расстояние от этой точки до самого предмета равно его высоте без учета роста наблюдателя от земли до глаза. При выполнении этой работы каждый ученик измеряет свой рост от поверхности земли до глаза. Воспользовавшись этим, оказывается возможным измерить высоту горы, сопки, холма, террикона. Под наблюдением учителя ребята располагаются цепочкой на склоне террикона так, чтобы ноги верхнего находились на уровне глаз нижнего. Вот и все. Теперь достаточно суммировать рост всех ребят, расположенных на склоне. Обычно высота небольшого террикона равна 30-35 м, и 20 ребят с приличной степенью точности определяют его высоту. Вторая группа выполняет эту же работу на другом, более пологом или более крутом склоне. И сколько бывает радости, когда результаты совпадают! Веселья не меньше, чем было у научных групп, выполнявших измерения по отклонению светового луча вблизи больших масс, когда во время солнечного затмения одна группа вела наблюдения в местечке Собраль, а другая - на острове Принчип. Эти наблюдения стали торжеством теории относительности Эйнштейна. И здесь, как видим, играючи выполняется важная практическая работа. Важность же ее очевидна: измерить высоту горы можно не только группой в 20 человек, но и вдвоем, поднимаясь последовательно один над другим. А можно и в одиночку, засекая с каждым подъемом предмет, находящийся на склоне на уровне глаз. И как знать, где, кому и при каких обстоятельствах может понадобиться это знание или это умение. Знания - не в тягость. Но если даже во время загородной прогулки, спустя много лет, отец расскажет сыну, как измерить высоту горы, то и тогда одна такая работа многого стоит.  Топографические сочинения Каждый учитель географии хорошо знает, что такое топографический диктант: учитель называет объекты, а ученики вычерчивают в тетрадях их условные обозначения. Можно делать и наоборот: на доске - условные знаки, в тетрадях - наименования, объектов. В экспериментальных же классах этот вид проверочной работы практически сразу же был заменен топографическим сочинением. И этому тоже способствовали занятия в топографических школах. Чтение карты у разведчиков и у топографов должно быть таким же безошибочным и беглым, как чтение книги у грамотного человека. Взгляд не должен задерживаться на отдельных объектах - охватывать целиком всю разворачивающуюся перед ним картину: зоны видимости, крутизну склонов, пути подступа, участки недоступности. Перед глазами опытного картографа не схема, а живой ландшафт. Слов нет, пятикласснику такое топографическое зрение еще недоступно, но топографическое сочинение - это уже не разрозненные символы, а живая речь. Простейшее топографическое сочинение - "В походе". На доске - схематичный план местности с вьющейся тропинкой от начального до конечного пункта. Ребятам необходимо описать, что они видели в пути и какие приключения с ними происходили. И начинает звучать сначала робко, но затем более и более набирающая силу топографическая симфония. Здесь появляются зайцы, притаившиеся за кустами, и ужи, греющиеся на каменистых склонах обрывистых берегов рек, и утки, гнездящиеся на болоте. До медведей в лесах дело, правда, не доходило еще ни разу, но слухи о волках - это в каждой второй работе. Сочинения заполняются птицами, пасущимися стадами, прохладой речной воды и, конечно же, душистым медом, так как не показать на плане притаившийся условный знак пасеки просто невозможно - пусть фантазируют! С пасекой, правда, однажды произошел конфуз. Представленная на рецензию брошюра с опорными сигналами по географии была возвращена из научно-исследовательского института с язвительным замечанием: "Пасека условного обозначения не имеет и на картах не изображается!" Пришлось рекомендовать научным сотрудникам обратиться в институт картографии и аэрофотосъемки: пусть теперь и они в своих походах с детьми не проходят мимо лакомой точки на карте. Более сложное топографическое сочинение - "Донесение командира разведотряда". Здесь уж, пользуясь картой прифронтового участка, одними только топографическими знаками обойтись невозможно. Нужно описать состояние местности в данный момент. Был на карте лес, теперь - лесоповалы; была роща - остались одни пеньки; был небольшой овражек, теперь - противотанковый ров; господствующие высоты покрыты сетью дотов и дзотов; лощины покрыты масксетями; на грунтовой дороге следы танковых траков. Все-все должен видеть зоркий глаз разведчика. И это уже не просто география и не просто игра - это и смекалка, и первые литературные пробы, и удивительная возможность скрытой камерой заглянуть в мир ребенка. Сколько же дивных картин там раскрывается! Не пройдет учитель географии мимо этой вот возможности проводить топографические сочинения и лучшие их образцы сможет опубликовать в местной газете - пусть читают родители, пусть читают сами маленькие авторы, пусть читают те, у кого пока еще получается не лучшим образом. Подумать только: топографическое сочинение ученика на страницах газеты! В донецких областных газетах такие публикации были уже в 1975 г. А какой простор раскрывают топографические сочинения, описывающие былинные сражения! А отчеты о маршрутах геологических отрядов с условными обозначениями открытых полезных ископаемых! А сообщения о работе отрядов юных археологов! Сколько творческого воображения и основанной на строгих топографических картах фантазии позволяют раскрыть ребятам такие вот сочинения! Сообщение в районной газете, конечно же, редкость, но отобрать лучшие сочинения, отпечатать их в трех экземплярах на пишущей машинке и вывесить первые экземпляры на открытом стенде, вторые вручить авторам, а третьи вклеить в специальные альбомы - обязательный итог каждого топографического сочинения.  От Парижа до Якутска - Какая сегодня погода в Иркутске? - Минус двадцать два. - А в Киеве? - Минус десять. - Что сообщают из Праги? - Минус один. - Как чувствуют себя парижане? - Плюс семь. - А теперь откройте, пожалуйста, атласы и посмотрите внимательно, на какой широте расположены Иркутск, Киев, Прага и Париж. Ребята отвечают. - Верно,- соглашается учитель.- Каждый из этих городов расположен вблизи 50-й параллели, но Париж почти у самого побережья Атлантического океана, а Иркутск - в глубине континента Евразии. Но, может быть, такие показатели температуры случайны и завтра все будет наоборот? Не станем торопиться с выводами. Подождем до завтра. А завтра ребята зафиксируют температуру в Стокгольме, Хельсинки, Ленинграде, Соликамске, Якутске - городах, расположенных на 60-й параллели. Пройдет еще несколько недель, и к рейкам большого стенда ученики прикрепят графики температур в 12 столицах Европы и в 20 городах нашей страны. Игра? Конечно. Но в результате этой игры изучение разделов, связанных с зависимостью климата от географической широты места, близости океана, океанских течений и многих других факторов, станет предельно понятным: школьникам предоставляется возможность разобраться в существе явлений не абстрактно, а на основании длительных целенаправленных практических действий! Вместо однообразных графиков температур в своей собственной местности - кому она нужна? - каждый пятиклассник составляет их для одного из пунктов Евразии. Это не требует никаких дополнительных затрат времени из скудного ребячьего бюджета: ежедневно в газете "Известия" публикуются карты прогноза погоды. Их ребята приносят в класс, приклеивают на стенде, и они становятся таблицами общего пользования. Учитель тоже делает такие вырезки, но использует их только в том случае, если не срабатывают сразу все три "контрольные точки" (трое ответственных за таблицы), что случается исключительно редко. А сколько вокруг этих таблиц возникает споров, дискуссий, с каким интересом дети начинают относиться ко всем сообщениям, которые приходят из "их" городов! Рождается цепная реакция общих интересов и деловых взаимосвязей. Вот только связывать эту и подобные ей игры с системой оценивания знаний ни в коем случае нельзя. Мыслимое ли дело: поставить оценку "2" ученику, который не сделал вырезку из газеты? Всю вину за этот курьез учитель обязан взять на себя: не напомнил, не пошутил, не похвалил, не поговорил - много ли для этого нужно секунд? Но с двойкой, куда ни шло, согласятся многие. Не все, но многие. Не согласятся только те, которые наотмашь ставят двойки за малейшую провинность, в том числе и за календари погоды, как будто календари - измерители уровня знаний ребят. А оценка-то может быть выставлена только за знания. С пятеркой все сложнее. Иному может показаться: а почему бы и не поощрить отличной оценкой ученика, делающего систематические вырезки из газеты "Известия"? И снова тот же ответ: оценка ставится не за исполнительность или прилежание, а за знания.  Уроки открытых мыслей Этот в высшей степени плодотворный вид учебной работы пришел в первые же недели использования опорных сигналов на уроках географии. Началось с того, что ребята сами начали приписывать к конспектам небольшие добавки. Что-то, кто-то, где-то прочитал, услышал, увидел, и пожалуйста - в конспекте приписка. В математике такие явления чрезвычайно редки, в физике - немного чаще, а в географии - только похвали... Кроме того, большой резерв свободного времени, образовавшийся в результате ускоренного прохождения программы, позволил использовать на уроках самую разнообразную научно-популярную литературу. Ритуалом стало каждодневное чтение отдельных глав из книг, журнальных статей и газетных сообщений. Это беспромедлительно вызвало ответную реакцию ребят: они стали приносить в школу брошюры, газеты, а иной раз и просто краткие записи теле- и радиопередач. И тогда слово было предоставлено самим учащимся на специально отведенных для этого уроках. Так пришла идея уроков открытых сообщений. Дальше - больше. Сообщения - это всего только компиляция. Нужно было пробудить творческую мысль школьников. И тогда... Слово для очередного сообщения предоставляется Светлане Долинкиной. - Если хотят узнать возраст дерева, то считают его годовые кольца: каждый год в стволе образуется новое кольцо. Наружные кольца - широкие, внутренние - более узкие. Я считаю, что зимой, когда в наружном слое древесины образуется лед, внутренние слои ствола испытывают сильное давление, так как вода при замерзании расширяется. Это нам в IV классе на природоведении показывали. От этого же давления в наружном слое образуется широкое кольцо. Это расширение весной заполняется соками, клетчаткой, и образуется новое кольцо. В будущем году поверх него образуется еще одно, и так - каждый год. На добрые полминуты в классе повисла тишина. Каждый оценивал правильность рассуждений Светланы. И нужно сказать, что у большинства ребят на лицах уже начало появляться выражение восхищения: ведь как здорово и просто! Тем более что такой точки зрения никто и никогда еще не высказывал. Но вот - первая рука. Это Миша Стремнинский. Спокойный, вдумчивый, обстоятельно мыслящий ученик. - Такое рассуждение легко опровергается. В экваториальных поясах никогда не бывает зимы, а поэтому все деревья с вечнозеленым покровом не имели бы годовых колец. Вот что такое урок открытых мыслей! Чувство собственного достоинства каждого, кто хотя бы однажды высказал дельную мысль, усиливается тем, что краткое сообщение об этом событии заносится в летопись открытых мыслей. Так и полемический диалог между Светланой и Мишей отпечатан на машинке и хранится в архивных документах класса. Уроки открытых мыслей таят в себе возможность возникновения самых неожиданных ситуаций, и профессиональное мастерство учителя проверяется на них самым строгим образом. Вот один из примеров. Еще на перемене слово для интересного сообщения попросила Катя Кружилина. О том, что ее отец - большой книголюб и что сама Катя много читает, в классе знают все. Каждое ее сообщение надолго остается в памяти ребят, но на этот раз оно вызвало бурю страстей. Слегка волнуясь, девочка начинает неторопливо читать: Развязка наступила почти неожиданно. 11 ноября в море появилась бурая водоросль фукус, которой в прежних скоплениях не было. Потом встретилась усаженная улитками палка, какая-то веточка с красными ягодами. Адмирал обещал большую награду тому, кто первый увидит землю: пожизненную ренту в десять тысяч мараведисов от имени королевы, а от себя - шелковый камзол. Под вечер того же дня над кораблем пролетели попугаи. К полуночи затянутое облаками небо прояснилось. Выглянула луна. Свежий ветер подгонял каравеллы. 12 ноября, два часа ночи. На борту "Пинты" раздается крик: "Земля! Земля!" И затем выстрел бомбарды. "Пинта" направилась к кораблю адмирала11. Сколько мыслей рождает этот отрывок, тем более - стремления к действию! Хочется тотчас же отправиться в библиотеку, переворошить все, что связано с путешествием Христофора Колумба, и навсегда реабилитировать великого путешественника или убедиться в справедливости обвинения. Именно этот путь дальнейшей беседы с учениками и должен избрать учитель. Путь поиска. Пусть наши ученики ошибаются, пусть они спорят и не соглашаются с нами, учителями. Пусть только они никогда не будут равнодушными! Представьте себе, что в один из дней на видном месте в вестибюле школы появляются одновременно 4 планшета, на каждом из которых - проблемная задача. Три из них уже имеют решение, а над четвертой ломают головы и рационализаторы и изобретатели. Но ребята этого не знают. Они видят перед собой 4 задачи, разговор о которых будет проходить через неделю или даже через две на одном из уроков открытых мыслей. Вот эти задачи:
  • Как, не изменяя освещенности дороги, уменьшить световой поток, попадающий в глаза шофера встречного автомобиля?
  • Придумать приспособление, с помощью которого можно было бы без труда обнаружить местонахождение предметов, случайно упавших в реку или в море.
  • Как защитить исторические памятники от любителей оставлять на всех приметных местах свои "автографы"?
  • Как, имея в распоряжении только пулю, определить время, прошедшее после выстрела? (Три первые задачи взяты из книги А. Б. Селюцкого и Г. И. Селюгина "Вдохновение по заказу". Петрозаводск, 1977.) Иногда случается так, что одна из задач оказывается проще других и ее решение за несколько дней находит большая часть ребят. В этом случае на специальном планшете вывешивается список всех, кто решил задачу, но само решение держится в секрете до очередного урока открытых мыслей. Список этот, увеличивающийся день ото дня,- отличный стимул для всех остальных. Если же задача оказывается несколько сложнее других, то для ее решения выделяется еще 2-3 недели, после чего она выносится на урок открытых мыслей. Сообщение о пред-, стоящем анализе трудной задачи привлекает обычно даже тех, кто предпочитает математику и физику относить не к самым любимым предметам. Всем, правильно решившим хоть одну из таких задач, вручаются специальные дипломы, а их фамилии заносятся в бюллетень научных проблем. Несколько дипломов по совокупности дают право на награждение похвальными грамотами по отдельным учебным предметам, если это подкрепляется еще и участием в школьных, районных, городских и областных предметных олимпиадах. Отметим особо: не победами, а участием.  Конец - делу венец Новые формы работы по географии потребовали и новой методики итогового контроля. Теперь уже оказалось невозможным по отрывочным вопросам экзаменационных билетов определить истинное различие между уровнями подготовки учащихся обычных и экспериментальных классов. После долгих поисков наиболее приемлемым оказался вариант четырех экзаменов по географии в каждом классе. Но как же можно нагрузить ребят четырьмя подготовками к четырем экзаменам? Это же форменное издевательство! Уймитесь, скорые на выводы критики. Четыре экзамена действительно будут, а вот подготовки - ни одной. Более того, в учебном обиходе не будет даже фигурировать слово "экзамен". И еще более того: в один из майских дней пятиклассники придут на обычный урок, сдадут экзамены - все, как один! - и уйдут домой, даже не подозревая о том, что они сдали экзамены. Тогда, может быть, это не экзамен, а всего только легкое групповое собеседование? Нет! Экзамен! Экзамен во всей строгости его требований. Высшая форма самостоятельности, как трактует его классическая педагогика. Что же проверяют экзамены?
  • Знание географической номенклатуры.
  • Репродуктивные знания.
  • Практические умения и навыки.
  • Уровень творческого мышления. На первом этапе ограничимся анализом контроля знаний географической номенклатуры. Программа требует, чтобы учащиеся V класса после первого года изучения географии показывали на карте около 100 географических объектов. Это и есть географическая номенклатура. Многократные контрольные проверки показали, что при работе в традиционных условиях даже у самых лучших учителей географии уровень знания номенклатуры не поднимается выше 30%. А при работе по новой методике? Проследим за процессом усвоения географической номенклатуры. Если разбить программный материал одного учебного года на 5 равных частей, то каждая из них будет содержать 20 единиц номенклатуры. Завершив эту часть программы, учитель выдает ученикам небольшие листочки, на которых напечатаны наименования этих объектов. Теперь один из учеников зачитывает наименования, а учитель показывает объекты на карте. Это последняя тренировка, во время которой ученик выполняет роль экзаменатора, а учитель - роль экзаменующегося. Теперь листочки вклеиваются в альбомы, и все знают: на следующем уроке будет проведена контрольная проверка. В ней никакой сложности. Половину объектов знает каждый, а оставшиеся 10 повторить по карте - минутное дело. Новый урок. Контроль. Каждый ученик получает контурную карту полушарий и простой карандаш. Учитель медленно читает наименование объекта и соответствующий ему порядковый номер. Ребята наносят простым карандашом эти номера на объекты контурных карт. - Один - полуостров Камчатка. Два - Магелланов пролив. Три - Балтийское море. Четыре - озеро Байкал (и т. д.). Время работы - 3 минуты. После этого контурные карты и карандаши сдаются. Проверку проводят учащиеся старших классов, которым выдаются ластики и листы с пронумерованными объектами. Процесс проверки предельно прост. Ученик видит на контурной карте цифру 4 на озере Байкал. Сверяется со списком. Все верно. Ставит черточку на чистом листе и тут же стирает с карты четверку. Карта становится чище. Осталось проверить еще 19 номеров. Окончательный результат сообщается учителю. Ко всем, кто не отметил более трех наименований, прикрепляются индивидуальные консультанты, которые проводят 2-3 контрольные проверки по всем 20 пунктам. Без записей. Одним только показом. Если ученик не допускает больше ошибок, консультант сообщает об этом учителю, и в специальной ведомости делается отметка: ответил. А уроки идут дальше до тех пор, пока не произойдет накопление еще 20 объектов. Как видим, вся работа занимает 15 минут. В конце учебного года - итоговая проверка по всем наименованиям одновременно. Время работы-11 минут. Все остальное идет точно так же. О предстоящей работе никого не предупреждают. Ни о каком экзамене нет и речи. Дети и родители спокойны. Но экзамен-то состоялся! Он продолжался 11 минут. Были опрошены все ученики по полному профилю требований. И такая система отношений в школе становится нормой на уроках не только географии, но и всех остальных учебных предметов. Вот письмо учительницы математики, одной из участниц семинара по геометрии, проведенного в Донецке в январе 1988 г. Письмо датировано 31 июля 1988 г. "Еще раз благодарю Вас за январский семинар. Теперь на уроки геометрии иду с улыбкой: для детей нет ничего интереснее геометрии. Доказательство тому - досрочный экзамен. 3 февраля на базе другой школы был проведен семинар по математике, и мне было предложено дать открытый урок в незнакомом классе. На уроке присутствовали 28 математиков, 19 географов и инспекторы районо. После третьего повтора дети заговорили, доказывали теоремы и решили 9 задач. В этом году третий экзамен дети выбирали по желанию, и мои выбрали геометрию. Экзамен провели задолго до конца учебного года прямо на уроке. О предстоящем экзамене детей и не предупреждали. Члены комиссии, в числе которых были и работники районо, были поражены желанием детей отвечать еще и еще. Ребята отвечали несколькими группами, и все прошло очень быстро. На предложение комиссии: "Дети, отдохните" - они хором: "А мы не устали. Можно еще один билетик?" (В. Н. Кизимова, с. Новоюласка Оренбургской обл. Красногвардейского района). 21 мая 1979 г. на основании приказа No 199 от 19 марта 1979 г. "О проведении корректурных срезов уровней знаний учащихся по географии" Донецким облоно был выполнен цикл контрольных измерений между экспериментальным V классом средней школы No 136, куда на один год был перенесен эксперимент по географии, и двумя пятыми классами, где работали лучшие учителя города. Это были пятые классы школ No 35 и 5. Итоги экзаменов, проводившихся под наблюдением заведующего кабинетом географии Донецкого облИУУ Н. В. Донченко и старшего научного сотрудника О. Я. Цекиновской, оказались следующими. По номенклатуре - 2270 : 994 : 450. По репродуктивным знаниям - 425 : 282 : 189. По практическим умениям и навыкам - 195 : 142 : 86. По творческому мышлению - 84 : 25 : 31. Во всех строчках на первом месте - результаты экспериментального V класса 136-й школы, на втором - 35-й, на третьем - 5-й. Пояснение. В 1978/79 учебном году, чтобы оградить от предвзятых нападок вновь назначенного директора 136-й школы учителя-экспериментатора Р. 3. Зубчевскую, руководитель эксперимента был вынужден вести уроки географии в этой школе. Нельзя не отметить еще одну особенность полученных результатов. В контрольных классах 35-й и 5-й школ два ученика не смогли найти на картах ни одного географического объекта. Нет-нет, карты были исписаны, но Гималайские горы благополучно перекочевали в Северную Америку, а Кордильеры - в Западную Европу. Северное море переселилось на место Охотского, а Охотское море стало омывать берега Кубы. Еще 16 учеников смогли отметить на картах от 1 до 6 объектов. Вдумаемся: у двух лучших учителей географии 18 ребят в конце учебного года практически ничего не знают даже в области номенклатуры! А что же тогда делается у всех остальных? И никого - ни самих учителей, ни работников наробраза, ни весь состав академии, ни многотысячные коллективы научно-исследовательских институтов - это нисколько не тревожит. В экспериментальном классе таких "черных дыр" не было ни у одного ученика. Наименьшее количество правильно отмеченных объектов - 25. А как же лучшие? Два самых высоких результата в 35-й школе: 65 и 52 объекта, а в 5-й - 63 и 49 объектов (весьма показательное сходство), в то время как в 136-й 22 человека показали результаты лучше самого лучшего ученика в двух контрольных классах - от 67 до 99 объектов! Стопроцентные результаты показали Болдырев Вова и Пыжов Андрей - 99 из 99. 98 объектов отметил Игорь Доброхлебов, 92 - Аня Айриян и т. д. Аналогичными оказались результаты и по другим параметрам. С практической работой в экспериментальном классе не справилась только одна ученица, в контрольных- 20 ребят. Письменную контрольную в экспериментальном классе выполнили все, а в контрольных классах она оказалась непосильной для 14 ребят. Приведем образцы билетов такой работы. 1-й билет.
  • Почему происходят землетрясения?
  • Как отличаются горы по высоте?
  • Что такое азимут? 2-й билет.
  • Как сейсмическим способом изучается внутреннее строение Земли?
  • Дать краткое описание путешествия X. Колумба.
  • Какие задачи решают ученые-географы в настоящее время? 3-й билет.
  • Какова роль искусственных спутников Земли и космических кораблей в изучении Земли?
  • Что такое географическая карта?
  • На какие группы делятся по происхождению острова? Каждый ученик получил отличный от всех других билет, а все билеты, вместе взятые, охватывали полный курс географии V класса. Принцип составления заданий, включенных в билеты, аналогичен для контрольных работ, проводящихся в экспериментальных классах по всем учебным предметам. Их цель - выявить общий уровень усвоения программного материала классом в целом и обнаружить возможные пробелы. Потому что качество знаний - это прежде всего целостность, системность, т. е. осмысленность представлений об основных закономерностях и понятиях в их взаимосвязях, составляющих учебные тему, раздел, курс. Работа с опорными сигналами, как и экспериментальная методика в целом, обеспечивает именно такое качество знаний ребят. Причина низких результатов в контрольных классах вовсе не в меньшей способности детей или в непрофессионализме учителей, а в слабости традиционных методов обучения. И это еще один убедительный аргумент в преимуществах новой методики. Если есть более действенное оружие, стоит ли держаться за привычное, но давно уже морально устаревшее, изжившее себя? Вот почему и едут в Донецк учителя.  Чем сто раз услышать...  Зима 1980 г. в Донецкой области началась небывалым снегопадом, и рейсовые автобусы едва-едва пробивались сквозь снежные завалы. В эти дни в Донецк приехал доктор психологических наук 3. И. Калмыкова. В течение 6 дней она посещала уроки во всех школах города и области, где учителя работали на основе новой методики. Уроки математики чередовались с уроками истории, уроки географии - с уроками русского языка и уроками по основам Советского государства и права. Сотни ребят прошли за эти дни перед Зинаидой Ильиничной - пятиклассники, шестиклассники, восьмиклассники, девятиклассники, и всем им задавался один и тот же вопрос: "Сколько времени вы тратите на подготовку к урокам?" Втрое меньше обычного - так получалось из ответов ребят. Но то - ответы, а как обстоит дело в действительности? И вот каждый день после окончания уроков ученый-психолог оставалась с группами ребят, чтобы изучить процесс подготовки к урокам и определить затраты времени на выполнение заданий по различным учебным предметам. 17 минут в среднем уходило у каждого ученика на подготовку к одному уроку - таким оказался итог. И это при условии, что дети занимались в непривычной обстановке, когда рядом с ними сидели незнакомые люди (вместе с Зинаидой Ильиничной наблюдения вела кандидат психологических наук Галина Александровна Вайзер). Совершенно очевидно, что 3. И. Калмыкову и Г. А. Вайзер интересовали не только затраты рабочего времени на подготовку к урокам, но и другие особенности учебной деятельности ребят. Но при чем здесь снежная зима, спросит въедливый читатель. А при том, что Зинаида Ильинична передвигается с помощью костылей, и можно представить, скольких сил стоили ей поездки в переполненном еле одолевающем сугробы транспорте на уроки учителей-экспериментаторов не только в школы Донецка, но и за 50 км в школу No 1 г. Курахово. Но на все эти трудности Зинаида Ильинична просто не обращала внимания, захваченная интересом к нашей работе, стремлением увидеть все воочию, разобраться в том, что вносит в учение ребят экспериментальная методика. Вот что такое настоящий ученый. И об этом тоже нужно знать читателю... Два года понадобилось, чтобы перевести на новую методику только один предмет - географию. Ребята уже учились в VII классе, и появилась возможность изучать на новой методической основе еще один предмет - историю. Чтобы не повторять автобусных мытарств двухлетней давности, решено было заинтересовать учителей работой по-новому, открыв всем желающим двери экспериментального класса сразу после освоения ребятами опорных сигналов по всему курсу истории VII класса. И снова, хотя программный материал здесь очень объемный, был получен значительный выигрыш во времени. 50 листов с опорными сигналами охватили все содержание курса. Еще 6 листов потребовалось для истории Украинской ССР и 3 листа для истории родного края - Донецкой области. Итого - 59 листов. Два дополнительных урока было выделено на обзорное повторение и два - для заключительных контрольных работ. Итого - 63 урока, что на 26 уроков меньше предусмотренных сеткой часов для школ Украины (в VII классе здесь 2 урока в неделю в первом полугодии и 3 урока в неделю во втором). Могло ли это не привлечь думающих учителей истории? Тем более что для них, ка