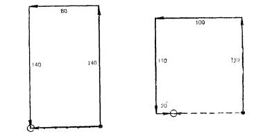
pyatidnevnuyu rabochuyu nedelyu. |to proizoshlo v VII klasse, kogda na novoj metodicheskoj osnove rebyata stali izuchat' algebru, geometriyu, fiziku, himiyu, geografiyu i istoriyu. Vot takoj stala istoriya s geografiej! Vtorym vyhodnym dnem u rebyat po rekomendacii gigienistov stal chetverg. I nuzhno bylo videt', s kakoj zavist'yu prohodila vsya shkola v chetverg mimo zakrytyh dverej VII eksperimental'nogo klassa. Poputno otmetim, chto rebyata 28-j shkoly vtorogo vyhodnogo dnya tak poka i ne poluchili - za schet odnih tol'ko urokov geografii takogo vyigrysha vo vremeni poluchit' nevozmozhno, dazhe esli izuchaetsya kurs ekonomicheskoj geografii. A beskonechnaya cheharda s administraciej, nachavshayasya v etoj shkole po ne imevshim k eksperimental'noj rabote prichinam, ne dala vozmozhnosti pedagogicheskomu kollektivu gluboko i ser'ezno zanyat'sya novym delom. Rabotu v shkole prodolzhila i prodolzhaet odna tol'ko Majya Semenovna. V knige otzyvov priezzhayushchih, kotoruyu ona vedet, tysyachi vostorzhennyh zapisej, na seminary v 28-yu edet vsya strana, gotovitsya k izdaniyu kniga M. S. Vinokur, no u nee net dazhe vozmozhnosti realizovat' poluchaemuyu ekonomiyu vo vremeni - kuda ee obratit'? Pravda, teper' kurs izuchaetsya bolee gluboko, i na geografiyu tyanutsya teper' ucheniki iz sosednih shkol, no eto vse zhe chastnoe sledstvie. K glaznoj celi eshche nuzhno budet idti.  Ne speshi delom, toropis' mysl'yu! Teplyj osennij vecher. Nad golovoj - rossyp' zvezd, a vdali u gorizonta polyhaet zarevo bol'shogo goroda. Vo vse storony, kuda ni pojdi,- step'. - Sever - 140 m, zapad - 80 m, yug - 140 m.- Golos uchitelya spokojnyj, strogij. Daetsya igrovoe zadanie.- Eshche raz: sever - 140, zapad - 80, yug - 140. Mal'chik povorachivaetsya, nahodit glavnyj orientir - Polyarnuyu zvezdu i uhodit v noch'. Tam, v konce zadannogo emu marshruta, on votknet v zemlyu derevyannyj, special'no prigotovlennyj dlya igry kolyshek, na gladkom sreze kotorogo napisana ego familiya. Usloviya igry byli ob座avleny eshche dnem, v klasse. Kazhdyj znaet, chto konec marshruta - eto kontrol'naya tochka, kotoruyu opredelili dnem na osnovanii tochnyh izmerenij s pomoshch'yu ruletki, chto eta tochka pomechena i zavtra, na rassvete, uchitel' opredelit otklonenie kolyshka ot istinnoj tochki - konca marshruta. V itoge budut vyyavleny pobediteli. Dlina sobstvennogo shaga izvestna kazhdomu - izmereniya i kontrol'nye proverki provodilis' neskol'ko raz v svyazi s drugimi igrami, v kotoryh nuzhno znat' dlinu shaga. V to vremya kogda ukazyvalsya marshrut pervomu ucheniku, ostal'nye stoyali poodal'. Zatem podoshel sleduyushchij. - Zapad -150 m, sever-80 m, vostok-150 m. |to novyj marshrut s vyhodom na novuyu kontrol'nuyu tochku. Dlya provedeniya igry vpolne dostatochno treh kontrol'nyh tochek - po dvum prichinam. 1. Na kazhduyu kontrol'nuyu tochku mozhno vyjti neskol'kimi neshozhimi marshrutami. Tak, na pervuyu tochku mozhno vyjti po drugomu zadaniyu: sever - 110m, zapad - 100 m, yug - 110 m, vostok - 20 m. V etom marshrute dopolnitel'naya slozhnost' - odin povorot, no zato on na 30 m koroche, chto kompensiruet itogovoe otklonenie. 2. Na kazhduyu kontrol'nuyu tochku ucheniki otpravlyayutsya s intervalom v neskol'ko minut, i etogo vpolne dostatochno, chtoby vperedi idushchij ushel dostatochno daleko. Po etoj prichine na odin i tot zhe marshrut mozhno napravit' 5-6 chelovek. Itogi igry nepremenno osveshchayutsya ocherednoj geograficheskoj "molniej", no posle etoj igry nikakih "molnij" obychno ne byvaet. A byvaet... - Vchera dva pyatyh klassa prinyali uchastie v igre s nochnym orientirovaniem na Polyarnuyu zvezdu. Iz 72 uchastnikov vyshli na kontrol'nye tochki s otkloneniem do 20 m tol'ko 19 chelovek. Esli uchest' slozhnost' orientirovaniya, to etot rezul'tat mozhno bylo by schitat' neplohim i otmetit' v nashej "molnii" treh pobeditelej. No davajte podumaem vmeste: mozhno li nazvat' pobeditelem togo uchenika, kotoryj proshagal po nochnoj stepi 360 m, sdelal pri etom dva povorota, ne svodil glaz s Polyarnoj zvezdy i ni razu ne zadumalsya nad tem, chto on delaet? Ot nego trebovalos' tol'ko odno: vyjti na kontrol'nuyu tochku, a kakoj dorogoj on pojdet, nikogo ne interesovalo. |togo voobshche nikto ne videl - kakaya byla t'ma, vy otlichno pomnite. No ved' esli prizadumat'sya, to vyjti na kontrol'nuyu tochku mozhno bylo gorazdo proshche! Vmesto togo chtoby idti po marshrutu: sever - 140 m, zapad - 80 m, yug - 140 m, dostatochno bylo srazu povernut'sya na zapad i projti vsego 80 m. Posmotrite na plan vashego vcherashnego marshruta, i vam stanet nelovko za vse, chto vy delali vchera (sm. s. 146). Rebyata sidyat oglushennye. U nih dazhe net zhelaniya vyyasnyat', kto zhe vchera vse-taki byl blizhe vseh k celi. Okazyvaetsya, nel'zya pristupat' k delu, ne osmysliv ego vsestoronne, ne opredeliv po vozmozhnosti naibolee izyashchnye puti vypolneniya zadachi. Teper' eto ne prosto ustanovka na ocherednuyu igru. |to ustanovka na vsyu zhizn'. Vklyuchenie etoj i drugih igr (o nekotoryh rech' pojdet dal'she) stalo vozmozhnym tol'ko blagodarya "vtoromu obrazovaniyu", ne imeyushchemu nikakogo otnosheniya k programme fiziko-matematicheskogo fakul'teta pedagogicheskogo instituta, i eto uzhe informaciya k razmyshleniyu o neobhodimosti obshirnogo polya znanij dlya uchitelya i lyubogo specialista. Kompozitor A. P. Borodin shutil, chto on luchshij kompozitor sredi himikov i luchshij himik sredi kompozitorov. Obshirnye znaniya v oblasti himii ne meshali emu sozdavat' vechnye muzykal'nye proizvedeniya. Velikij Faradej, krome vsego prochego, byl otlichnym perepletchikom i ne ostavlyal etogo dela do konca dnej zhizni. Poslednee, chto on sdelal pered samoj svoej smert'yu,- pereplel vse svoi nauchnye trudy. A uzh esli vspomnit' o "pervom russkom universitete" - M. V. Lomonosove, to dlya ego neob座atnogo talanta voobshche ne ostaetsya mesta v klassifikacii teh, kto ratuet za rannyuyu specializaciyu shkol'nikov. Takih primerov - tysyachi i tysyachi. Utochnim: igra, o kotoroj tol'ko chto shla rech', vovse ne igra. |to programmnaya prakticheskaya rabota na mestnosti. V tradicionnyh usloviyah ee obychno vypolnyayut tak: vyhodyat vecherom na shkol'nyj stadion, pokazyvayut na nebesnoj sfere Bol'shuyu Medvedicu, potom Polyarnuyu zvezdu i Maluyu Medvedicu, potom... Potom rashodyatsya po domam, i v plane raboty ryadom s temoj "Orientirovanie po Polyarnoj zvezde" stavitsya ptichka, a na sleduyushchij den' delaetsya sootvetstvuyushchaya zapis' v klassnom zhurnale.  "Najdite menya!" Les etot nebol'shoj. Po perimetru ne bolee 6 km. So vseh storon ego opoyasyvayut dorogi. Vyjdi na lyubuyu iz nih - i do doma rukoj podat'. Dlya igr - razdol'e. - V konverte, kotoryj sejchas poluchil starosta klassa, azimutal'naya trehhodovka. Obshchaya dlina hoda - 1700 m. V konechnoj tochke marshruta budu nahodit'sya ya. Obnaruzhit' menya mozhno budet tol'ko v tom sluchae, esli otklonenie sostavit ne bolee 10 m. Maskirovka budet gruboj, no dostatochno hitroj. Konvert vskryt' rovno cherez odnu minutu. Najdite menya! K etomu instruktazhu ne byvaet nikakih dopolnitel'nyh poyasnenij. Oni ne nuzhny: idet zaklyuchitel'naya chast' bol'shoj igry. |to ne urok. |to voskresnyj vyhod v les. Rebyata v lesu uzhe bolee treh chasov. Za eto vremya oni vdovol' naigralis' v laptu, opredelili chempiona provorstva, proveli zabegi na priz "Odin iz desyati"10 i razygrali mnozhestvo drugih prizov. A mezhdu etimi "prosto igrami" snachala na otkrytoj polyane nauchilis' nahodit' azimuty napravlenij, zatem po azimutu i distanciyam vyhodit' na kontrol'nye tochki. V etih uprazhneniyah pobediteli ne fiksirovalis', no v dvuh posleduyushchih - trehhodovke na otkrytoj mestnosti i dvuhhodovke na zakrytoj - byli nazvany pervye chempiony. K poslednej igre "Najdite menya!" rebyata uzhe byli polnost'yu gotovy. Detskie golosa rassypalis' po lesu. Odni, chuvstvuetsya po vsemu, ushli daleko v storonu, drugie, netoroplivye v dejstviyah, pootstali, a samye shustrye - vot oni! Pristal'no vglyadyvayas' v kazhdyj kustik i neslyshno shevelya gubami (shagi schitaet), bystro priblizhaetsya Marinka. Zametila, ulybnulas', no, ne zamedlyaya shaga, ushla vpered. Ona pervaya, eto ponyatno. Teper' pust' drugie najdut. CHut' v storonke ostanovilsya Oleg. On uzhe vyshel na svoyu konechnuyu tochku, vyrval klok travy, polozhil na vetku (mesto zametil) i poshel po spirali vokrug etoj tochki. Zdes' tozhe vse ponyatno: ot nego uzhe nikuda ne det'sya - najdet... I eta igra, kak i predydushchaya, tozhe prishla iz shkoly topografov, tol'ko tam ee provodili zimoj posle snegopada. V tajge pryatali predmety, a kursanty poluchali azimutal'nye hody, kogda snegom zasypalo vse sledy rukovoditelya gruppy, gotovivshego poligon k igre. V programme V klassa po geografii predusmotrena tol'ko odna nebol'shaya rabota: opredelenie azimutov tochek. No razve mozhno zamykat'sya v ramkah programmy, esli v rasporyazhenii uchitelya est' vozmozhnost' prevratit' odnoobraznyj urok v mnogokrasochnuyu, uvlekatel'nuyu igru! A voskresnyj den'? Nu i chto? Razve dlya uchitelya progulka v lesu v okruzhenii svoih uchenikov - eto ne samyj luchshij otdyh? Dlya togo chtoby otdyhat' v igrah s Det'mi, neobhodimo ochen' mnogoe znat' i umet'. Bystroe pereklyuchenie igrovyh situacij, absolyutnoe vladenie igrovymi rekvizitami i nekotoroe prevoshodstvo v umeniyah pered uchenikami - vsemi etimi kachestvami uchitel' dolzhen ovladevat' eshche na studencheskoj skam'e. I togda dlya nego samogo igra stanet horoshim otdyhom. Utomlyayut ne igry (fizicheskaya ustalost' v radost' organizmu!), a odnoobraznye pohody, naskvoz' pronizannye beskonechnymi nazidatel'no-dokuchlivymi odergivaniyami, zapretami i okrikami.  "Najdite seredinu!" Otmetim ves'ma sushchestvennuyu detal'. Nachinat' igry neobhodimo ne na polyane i ne v lesu, a eshche v doroge. Inache deti vyjdut iz-pod kontrolya uzhe do pervogo privala. Ot konechnoj ostanovki trollejbusa do vidneyushchegosya na gorizonte lesa - 3 km, a mezhdu nimi pole. - Sprava, u dorogi, bol'shoj kust. Kto ne vidit? Vidyat vse. - Ostanovit'sya na seredine rasstoyaniya mezhdu etoj tochkoj i kustom. Dvizhenie proizvol'noe. Uchitel' s shagomerom uhodit poslednim. Vot on podoshel k krajnemu ostanovivshemusya, polagayushchemu, chto seredina najdena, i soobshchaet emu rezul'tat: 266 shagov. Tak rasstoyanie ot nachal'noj tochki do svoej serediny uznaet kazhdyj uchenik. Vtoruyu polovinu vse idut, vnimatel'no vslushivayas' v otkrytyj schet uchitelya, i kazhdyj ego shag kogo-to priblizhaet k pobede, kogo-to - k porazheniyu. Gde uzh tam oglyadyvat'sya po storonam! Net dela dazhe do sozrevayushchih shlyapok podsolnechnika na chuzhih ogorodah. I v etom tozhe svoj tajnyj smysl: ne prihoditsya ni zapreshchat', ni pribegat' k strogim meram. Takie vot melkie detali tozhe nel'zya upuskat' iz vidu.  ZHivye niveliry V kurse matematiki est' prakticheskaya rabota po izmereniyu vysoty predmeta s pomoshch'yu ravnobedrennogo pryamougol'nogo treugol'nika. Pryamym vizirovaniem po ego gipotenuze nahodyat tochku, iz kotoroj vidna vershina predmeta. Rasstoyanie ot etoj tochki do samogo predmeta ravno ego vysote bez ucheta rosta nablyudatelya ot zemli do glaza. Pri vypolnenii etoj raboty kazhdyj uchenik izmeryaet svoj rost ot poverhnosti zemli do glaza. Vospol'zovavshis' etim, okazyvaetsya vozmozhnym izmerit' vysotu gory, sopki, holma, terrikona. Pod nablyudeniem uchitelya rebyata raspolagayutsya cepochkoj na sklone terrikona tak, chtoby nogi verhnego nahodilis' na urovne glaz nizhnego. Vot i vse. Teper' dostatochno summirovat' rost vseh rebyat, raspolozhennyh na sklone. Obychno vysota nebol'shogo terrikona ravna 30-35 m, i 20 rebyat s prilichnoj stepen'yu tochnosti opredelyayut ego vysotu. Vtoraya gruppa vypolnyaet etu zhe rabotu na drugom, bolee pologom ili bolee krutom sklone. I skol'ko byvaet radosti, kogda rezul'taty sovpadayut! Vesel'ya ne men'she, chem bylo u nauchnyh grupp, vypolnyavshih izmereniya po otkloneniyu svetovogo lucha vblizi bol'shih mass, kogda vo vremya solnechnogo zatmeniya odna gruppa vela nablyudeniya v mestechke Sobral', a drugaya - na ostrove Princhip. |ti nablyudeniya stali torzhestvom teorii otnositel'nosti |jnshtejna. I zdes', kak vidim, igrayuchi vypolnyaetsya vazhnaya prakticheskaya rabota. Vazhnost' zhe ee ochevidna: izmerit' vysotu gory mozhno ne tol'ko gruppoj v 20 chelovek, no i vdvoem, podnimayas' posledovatel'no odin nad drugim. A mozhno i v odinochku, zasekaya s kazhdym pod容mom predmet, nahodyashchijsya na sklone na urovne glaz. I kak znat', gde, komu i pri kakih obstoyatel'stvah mozhet ponadobit'sya eto znanie ili eto umenie. Znaniya - ne v tyagost'. No esli dazhe vo vremya zagorodnoj progulki, spustya mnogo let, otec rasskazhet synu, kak izmerit' vysotu gory, to i togda odna takaya rabota mnogogo stoit.  Topograficheskie sochineniya Kazhdyj uchitel' geografii horosho znaet, chto takoe topograficheskij diktant: uchitel' nazyvaet ob容kty, a ucheniki vycherchivayut v tetradyah ih uslovnye oboznacheniya. Mozhno delat' i naoborot: na doske - uslovnye znaki, v tetradyah - naimenovaniya, ob容ktov. V eksperimental'nyh zhe klassah etot vid proverochnoj raboty prakticheski srazu zhe byl zamenen topograficheskim sochineniem. I etomu tozhe sposobstvovali zanyatiya v topograficheskih shkolah. CHtenie karty u razvedchikov i u topografov dolzhno byt' takim zhe bezoshibochnym i beglym, kak chtenie knigi u gramotnogo cheloveka. Vzglyad ne dolzhen zaderzhivat'sya na otdel'nyh ob容ktah - ohvatyvat' celikom vsyu razvorachivayushchuyusya pered nim kartinu: zony vidimosti, krutiznu sklonov, puti podstupa, uchastki nedostupnosti. Pered glazami opytnogo kartografa ne shema, a zhivoj landshaft. Slov net, pyatiklassniku takoe topograficheskoe zrenie eshche nedostupno, no topograficheskoe sochinenie - eto uzhe ne razroznennye simvoly, a zhivaya rech'. Prostejshee topograficheskoe sochinenie - "V pohode". Na doske - shematichnyj plan mestnosti s v'yushchejsya tropinkoj ot nachal'nogo do konechnogo punkta. Rebyatam neobhodimo opisat', chto oni videli v puti i kakie priklyucheniya s nimi proishodili. I nachinaet zvuchat' snachala robko, no zatem bolee i bolee nabirayushchaya silu topograficheskaya simfoniya. Zdes' poyavlyayutsya zajcy, pritaivshiesya za kustami, i uzhi, greyushchiesya na kamenistyh sklonah obryvistyh beregov rek, i utki, gnezdyashchiesya na bolote. Do medvedej v lesah delo, pravda, ne dohodilo eshche ni razu, no sluhi o volkah - eto v kazhdoj vtoroj rabote. Sochineniya zapolnyayutsya pticami, pasushchimisya stadami, prohladoj rechnoj vody i, konechno zhe, dushistym medom, tak kak ne pokazat' na plane pritaivshijsya uslovnyj znak paseki prosto nevozmozhno - pust' fantaziruyut! S pasekoj, pravda, odnazhdy proizoshel konfuz. Predstavlennaya na recenziyu broshyura s opornymi signalami po geografii byla vozvrashchena iz nauchno-issledovatel'skogo instituta s yazvitel'nym zamechaniem: "Paseka uslovnogo oboznacheniya ne imeet i na kartah ne izobrazhaetsya!" Prishlos' rekomendovat' nauchnym sotrudnikam obratit'sya v institut kartografii i aerofotos容mki: pust' teper' i oni v svoih pohodah s det'mi ne prohodyat mimo lakomoj tochki na karte. Bolee slozhnoe topograficheskoe sochinenie - "Donesenie komandira razvedotryada". Zdes' uzh, pol'zuyas' kartoj prifrontovogo uchastka, odnimi tol'ko topograficheskimi znakami obojtis' nevozmozhno. Nuzhno opisat' sostoyanie mestnosti v dannyj moment. Byl na karte les, teper' - lesopovaly; byla roshcha - ostalis' odni pen'ki; byl nebol'shoj ovrazhek, teper' - protivotankovyj rov; gospodstvuyushchie vysoty pokryty set'yu dotov i dzotov; loshchiny pokryty masksetyami; na gruntovoj doroge sledy tankovyh trakov. Vse-vse dolzhen videt' zorkij glaz razvedchika. I eto uzhe ne prosto geografiya i ne prosto igra - eto i smekalka, i pervye literaturnye proby, i udivitel'naya vozmozhnost' skrytoj kameroj zaglyanut' v mir rebenka. Skol'ko zhe divnyh kartin tam raskryvaetsya! Ne projdet uchitel' geografii mimo etoj vot vozmozhnosti provodit' topograficheskie sochineniya i luchshie ih obrazcy smozhet opublikovat' v mestnoj gazete - pust' chitayut roditeli, pust' chitayut sami malen'kie avtory, pust' chitayut te, u kogo poka eshche poluchaetsya ne luchshim obrazom. Podumat' tol'ko: topograficheskoe sochinenie uchenika na stranicah gazety! V doneckih oblastnyh gazetah takie publikacii byli uzhe v 1975 g. A kakoj prostor raskryvayut topograficheskie sochineniya, opisyvayushchie bylinnye srazheniya! A otchety o marshrutah geologicheskih otryadov s uslovnymi oboznacheniyami otkrytyh poleznyh iskopaemyh! A soobshcheniya o rabote otryadov yunyh arheologov! Skol'ko tvorcheskogo voobrazheniya i osnovannoj na strogih topograficheskih kartah fantazii pozvolyayut raskryt' rebyatam takie vot sochineniya! Soobshchenie v rajonnoj gazete, konechno zhe, redkost', no otobrat' luchshie sochineniya, otpechatat' ih v treh ekzemplyarah na pishushchej mashinke i vyvesit' pervye ekzemplyary na otkrytom stende, vtorye vruchit' avtoram, a tret'i vkleit' v special'nye al'bomy - obyazatel'nyj itog kazhdogo topograficheskogo sochineniya.  Ot Parizha do YAkutska - Kakaya segodnya pogoda v Irkutske? - Minus dvadcat' dva. - A v Kieve? - Minus desyat'. - CHto soobshchayut iz Pragi? - Minus odin. - Kak chuvstvuyut sebya parizhane? - Plyus sem'. - A teper' otkrojte, pozhalujsta, atlasy i posmotrite vnimatel'no, na kakoj shirote raspolozheny Irkutsk, Kiev, Praga i Parizh. Rebyata otvechayut. - Verno,- soglashaetsya uchitel'.- Kazhdyj iz etih gorodov raspolozhen vblizi 50-j paralleli, no Parizh pochti u samogo poberezh'ya Atlanticheskogo okeana, a Irkutsk - v glubine kontinenta Evrazii. No, mozhet byt', takie pokazateli temperatury sluchajny i zavtra vse budet naoborot? Ne stanem toropit'sya s vyvodami. Podozhdem do zavtra. A zavtra rebyata zafiksiruyut temperaturu v Stokgol'me, Hel'sinki, Leningrade, Solikamske, YAkutske - gorodah, raspolozhennyh na 60-j paralleli. Projdet eshche neskol'ko nedel', i k rejkam bol'shogo stenda ucheniki prikrepyat grafiki temperatur v 12 stolicah Evropy i v 20 gorodah nashej strany. Igra? Konechno. No v rezul'tate etoj igry izuchenie razdelov, svyazannyh s zavisimost'yu klimata ot geograficheskoj shiroty mesta, blizosti okeana, okeanskih techenij i mnogih drugih faktorov, stanet predel'no ponyatnym: shkol'nikam predostavlyaetsya vozmozhnost' razobrat'sya v sushchestve yavlenij ne abstraktno, a na osnovanii dlitel'nyh celenapravlennyh prakticheskih dejstvij! Vmesto odnoobraznyh grafikov temperatur v svoej sobstvennoj mestnosti - komu ona nuzhna? - kazhdyj pyatiklassnik sostavlyaet ih dlya odnogo iz punktov Evrazii. |to ne trebuet nikakih dopolnitel'nyh zatrat vremeni iz skudnogo rebyach'ego byudzheta: ezhednevno v gazete "Izvestiya" publikuyutsya karty prognoza pogody. Ih rebyata prinosyat v klass, prikleivayut na stende, i oni stanovyatsya tablicami obshchego pol'zovaniya. Uchitel' tozhe delaet takie vyrezki, no ispol'zuet ih tol'ko v tom sluchae, esli ne srabatyvayut srazu vse tri "kontrol'nye tochki" (troe otvetstvennyh za tablicy), chto sluchaetsya isklyuchitel'no redko. A skol'ko vokrug etih tablic voznikaet sporov, diskussij, s kakim interesom deti nachinayut otnosit'sya ko vsem soobshcheniyam, kotorye prihodyat iz "ih" gorodov! Rozhdaetsya cepnaya reakciya obshchih interesov i delovyh vzaimosvyazej. Vot tol'ko svyazyvat' etu i podobnye ej igry s sistemoj ocenivaniya znanij ni v koem sluchae nel'zya. Myslimoe li delo: postavit' ocenku "2" ucheniku, kotoryj ne sdelal vyrezku iz gazety? Vsyu vinu za etot kur'ez uchitel' obyazan vzyat' na sebya: ne napomnil, ne poshutil, ne pohvalil, ne pogovoril - mnogo li dlya etogo nuzhno sekund? No s dvojkoj, kuda ni shlo, soglasyatsya mnogie. Ne vse, no mnogie. Ne soglasyatsya tol'ko te, kotorye naotmash' stavyat dvojki za malejshuyu provinnost', v tom chisle i za kalendari pogody, kak budto kalendari - izmeriteli urovnya znanij rebyat. A ocenka-to mozhet byt' vystavlena tol'ko za znaniya. S pyaterkoj vse slozhnee. Inomu mozhet pokazat'sya: a pochemu by i ne pooshchrit' otlichnoj ocenkoj uchenika, delayushchego sistematicheskie vyrezki iz gazety "Izvestiya"? I snova tot zhe otvet: ocenka stavitsya ne za ispolnitel'nost' ili prilezhanie, a za znaniya.  Uroki otkrytyh myslej |tot v vysshej stepeni plodotvornyj vid uchebnoj raboty prishel v pervye zhe nedeli ispol'zovaniya opornyh signalov na urokah geografii. Nachalos' s togo, chto rebyata sami nachali pripisyvat' k konspektam nebol'shie dobavki. CHto-to, kto-to, gde-to prochital, uslyshal, uvidel, i pozhalujsta - v konspekte pripiska. V matematike takie yavleniya chrezvychajno redki, v fizike - nemnogo chashche, a v geografii - tol'ko pohvali... Krome togo, bol'shoj rezerv svobodnogo vremeni, obrazovavshijsya v rezul'tate uskorennogo prohozhdeniya programmy, pozvolil ispol'zovat' na urokah samuyu raznoobraznuyu nauchno-populyarnuyu literaturu. Ritualom stalo kazhdodnevnoe chtenie otdel'nyh glav iz knig, zhurnal'nyh statej i gazetnyh soobshchenij. |to bespromedlitel'no vyzvalo otvetnuyu reakciyu rebyat: oni stali prinosit' v shkolu broshyury, gazety, a inoj raz i prosto kratkie zapisi tele- i radioperedach. I togda slovo bylo predostavleno samim uchashchimsya na special'no otvedennyh dlya etogo urokah. Tak prishla ideya urokov otkrytyh soobshchenij. Dal'she - bol'she. Soobshcheniya - eto vsego tol'ko kompilyaciya. Nuzhno bylo probudit' tvorcheskuyu mysl' shkol'nikov. I togda... Slovo dlya ocherednogo soobshcheniya predostavlyaetsya Svetlane Dolinkinoj. - Esli hotyat uznat' vozrast dereva, to schitayut ego godovye kol'ca: kazhdyj god v stvole obrazuetsya novoe kol'co. Naruzhnye kol'ca - shirokie, vnutrennie - bolee uzkie. YA schitayu, chto zimoj, kogda v naruzhnom sloe drevesiny obrazuetsya led, vnutrennie sloi stvola ispytyvayut sil'noe davlenie, tak kak voda pri zamerzanii rasshiryaetsya. |to nam v IV klasse na prirodovedenii pokazyvali. Ot etogo zhe davleniya v naruzhnom sloe obrazuetsya shirokoe kol'co. |to rasshirenie vesnoj zapolnyaetsya sokami, kletchatkoj, i obrazuetsya novoe kol'co. V budushchem godu poverh nego obrazuetsya eshche odno, i tak - kazhdyj god. Na dobrye polminuty v klasse povisla tishina. Kazhdyj ocenival pravil'nost' rassuzhdenij Svetlany. I nuzhno skazat', chto u bol'shinstva rebyat na licah uzhe nachalo poyavlyat'sya vyrazhenie voshishcheniya: ved' kak zdorovo i prosto! Tem bolee chto takoj tochki zreniya nikto i nikogda eshche ne vyskazyval. No vot - pervaya ruka. |to Misha Stremninskij. Spokojnyj, vdumchivyj, obstoyatel'no myslyashchij uchenik. - Takoe rassuzhdenie legko oprovergaetsya. V ekvatorial'nyh poyasah nikogda ne byvaet zimy, a poetomu vse derev'ya s vechnozelenym pokrovom ne imeli by godovyh kolec. Vot chto takoe urok otkrytyh myslej! CHuvstvo sobstvennogo dostoinstva kazhdogo, kto hotya by odnazhdy vyskazal del'nuyu mysl', usilivaetsya tem, chto kratkoe soobshchenie ob etom sobytii zanositsya v letopis' otkrytyh myslej. Tak i polemicheskij dialog mezhdu Svetlanoj i Mishej otpechatan na mashinke i hranitsya v arhivnyh dokumentah klassa. Uroki otkrytyh myslej tayat v sebe vozmozhnost' vozniknoveniya samyh neozhidannyh situacij, i professional'noe masterstvo uchitelya proveryaetsya na nih samym strogim obrazom. Vot odin iz primerov. Eshche na peremene slovo dlya interesnogo soobshcheniya poprosila Katya Kruzhilina. O tom, chto ee otec - bol'shoj knigolyub i chto sama Katya mnogo chitaet, v klasse znayut vse. Kazhdoe ee soobshchenie nadolgo ostaetsya v pamyati rebyat, no na etot raz ono vyzvalo buryu strastej. Slegka volnuyas', devochka nachinaet netoroplivo chitat': Razvyazka nastupila pochti neozhidanno. 11 noyabrya v more poyavilas' buraya vodorosl' fukus, kotoroj v prezhnih skopleniyah ne bylo. Potom vstretilas' usazhennaya ulitkami palka, kakaya-to vetochka s krasnymi yagodami. Admiral obeshchal bol'shuyu nagradu tomu, kto pervyj uvidit zemlyu: pozhiznennuyu rentu v desyat' tysyach maravedisov ot imeni korolevy, a ot sebya - shelkovyj kamzol. Pod vecher togo zhe dnya nad korablem proleteli popugai. K polunochi zatyanutoe oblakami nebo proyasnilos'. Vyglyanula luna. Svezhij veter podgonyal karavelly. 12 noyabrya, dva chasa nochi. Na bortu "Pinty" razdaetsya krik: "Zemlya! Zemlya!" I zatem vystrel bombardy. "Pinta" napravilas' k korablyu admirala11. Skol'ko myslej rozhdaet etot otryvok, tem bolee - stremleniya k dejstviyu! Hochetsya totchas zhe otpravit'sya v biblioteku, perevoroshit' vse, chto svyazano s puteshestviem Hristofora Kolumba, i navsegda reabilitirovat' velikogo puteshestvennika ili ubedit'sya v spravedlivosti obvineniya. Imenno etot put' dal'nejshej besedy s uchenikami i dolzhen izbrat' uchitel'. Put' poiska. Pust' nashi ucheniki oshibayutsya, pust' oni sporyat i ne soglashayutsya s nami, uchitelyami. Pust' tol'ko oni nikogda ne budut ravnodushnymi! Predstav'te sebe, chto v odin iz dnej na vidnom meste v vestibyule shkoly poyavlyayutsya odnovremenno 4 plansheta, na kazhdom iz kotoryh - problemnaya zadacha. Tri iz nih uzhe imeyut reshenie, a nad chetvertoj lomayut golovy i racionalizatory i izobretateli. No rebyata etogo ne znayut. Oni vidyat pered soboj 4 zadachi, razgovor o kotoryh budet prohodit' cherez nedelyu ili dazhe cherez dve na odnom iz urokov otkrytyh myslej. Vot eti zadachi:
  • Kak, ne izmenyaya osveshchennosti dorogi, umen'shit' svetovoj potok, popadayushchij v glaza shofera vstrechnogo avtomobilya?
  • Pridumat' prisposoblenie, s pomoshch'yu kotorogo mozhno bylo by bez truda obnaruzhit' mestonahozhdenie predmetov, sluchajno upavshih v reku ili v more.
  • Kak zashchitit' istoricheskie pamyatniki ot lyubitelej ostavlyat' na vseh primetnyh mestah svoi "avtografy"?
  • Kak, imeya v rasporyazhenii tol'ko pulyu, opredelit' vremya, proshedshee posle vystrela? (Tri pervye zadachi vzyaty iz knigi A. B. Selyuckogo i G. I. Selyugina "Vdohnovenie po zakazu". Petrozavodsk, 1977.) Inogda sluchaetsya tak, chto odna iz zadach okazyvaetsya proshche drugih i ee reshenie za neskol'ko dnej nahodit bol'shaya chast' rebyat. V etom sluchae na special'nom planshete vyveshivaetsya spisok vseh, kto reshil zadachu, no samo reshenie derzhitsya v sekrete do ocherednogo uroka otkrytyh myslej. Spisok etot, uvelichivayushchijsya den' oto dnya,- otlichnyj stimul dlya vseh ostal'nyh. Esli zhe zadacha okazyvaetsya neskol'ko slozhnee drugih, to dlya ee resheniya vydelyaetsya eshche 2-3 nedeli, posle chego ona vynositsya na urok otkrytyh myslej. Soobshchenie o pred-, stoyashchem analize trudnoj zadachi privlekaet obychno dazhe teh, kto predpochitaet matematiku i fiziku otnosit' ne k samym lyubimym predmetam. Vsem, pravil'no reshivshim hot' odnu iz takih zadach, vruchayutsya special'nye diplomy, a ih familii zanosyatsya v byulleten' nauchnyh problem. Neskol'ko diplomov po sovokupnosti dayut pravo na nagrazhdenie pohval'nymi gramotami po otdel'nym uchebnym predmetam, esli eto podkreplyaetsya eshche i uchastiem v shkol'nyh, rajonnyh, gorodskih i oblastnyh predmetnyh olimpiadah. Otmetim osobo: ne pobedami, a uchastiem.  Konec - delu venec Novye formy raboty po geografii potrebovali i novoj metodiki itogovogo kontrolya. Teper' uzhe okazalos' nevozmozhnym po otryvochnym voprosam ekzamenacionnyh biletov opredelit' istinnoe razlichie mezhdu urovnyami podgotovki uchashchihsya obychnyh i eksperimental'nyh klassov. Posle dolgih poiskov naibolee priemlemym okazalsya variant chetyreh ekzamenov po geografii v kazhdom klasse. No kak zhe mozhno nagruzit' rebyat chetyr'mya podgotovkami k chetyrem ekzamenam? |to zhe formennoe izdevatel'stvo! Ujmites', skorye na vyvody kritiki. CHetyre ekzamena dejstvitel'no budut, a vot podgotovki - ni odnoj. Bolee togo, v uchebnom obihode ne budet dazhe figurirovat' slovo "ekzamen". I eshche bolee togo: v odin iz majskih dnej pyatiklassniki pridut na obychnyj urok, sdadut ekzameny - vse, kak odin! - i ujdut domoj, dazhe ne podozrevaya o tom, chto oni sdali ekzameny. Togda, mozhet byt', eto ne ekzamen, a vsego tol'ko legkoe gruppovoe sobesedovanie? Net! |kzamen! |kzamen vo vsej strogosti ego trebovanij. Vysshaya forma samostoyatel'nosti, kak traktuet ego klassicheskaya pedagogika. CHto zhe proveryayut ekzameny?
  • Znanie geograficheskoj nomenklatury.
  • Reproduktivnye znaniya.
  • Prakticheskie umeniya i navyki.
  • Uroven' tvorcheskogo myshleniya. Na pervom etape ogranichimsya analizom kontrolya znanij geograficheskoj nomenklatury. Programma trebuet, chtoby uchashchiesya V klassa posle pervogo goda izucheniya geografii pokazyvali na karte okolo 100 geograficheskih ob容ktov. |to i est' geograficheskaya nomenklatura. Mnogokratnye kontrol'nye proverki pokazali, chto pri rabote v tradicionnyh usloviyah dazhe u samyh luchshih uchitelej geografii uroven' znaniya nomenklatury ne podnimaetsya vyshe 30%. A pri rabote po novoj metodike? Prosledim za processom usvoeniya geograficheskoj nomenklatury. Esli razbit' programmnyj material odnogo uchebnogo goda na 5 ravnyh chastej, to kazhdaya iz nih budet soderzhat' 20 edinic nomenklatury. Zavershiv etu chast' programmy, uchitel' vydaet uchenikam nebol'shie listochki, na kotoryh napechatany naimenovaniya etih ob容ktov. Teper' odin iz uchenikov zachityvaet naimenovaniya, a uchitel' pokazyvaet ob容kty na karte. |to poslednyaya trenirovka, vo vremya kotoroj uchenik vypolnyaet rol' ekzamenatora, a uchitel' - rol' ekzamenuyushchegosya. Teper' listochki vkleivayutsya v al'bomy, i vse znayut: na sleduyushchem uroke budet provedena kontrol'naya proverka. V nej nikakoj slozhnosti. Polovinu ob容ktov znaet kazhdyj, a ostavshiesya 10 povtorit' po karte - minutnoe delo. Novyj urok. Kontrol'. Kazhdyj uchenik poluchaet konturnuyu kartu polusharij i prostoj karandash. Uchitel' medlenno chitaet naimenovanie ob容kta i sootvetstvuyushchij emu poryadkovyj nomer. Rebyata nanosyat prostym karandashom eti nomera na ob容kty konturnyh kart. - Odin - poluostrov Kamchatka. Dva - Magellanov proliv. Tri - Baltijskoe more. CHetyre - ozero Bajkal (i t. d.). Vremya raboty - 3 minuty. Posle etogo konturnye karty i karandashi sdayutsya. Proverku provodyat uchashchiesya starshih klassov, kotorym vydayutsya lastiki i listy s pronumerovannymi ob容ktami. Process proverki predel'no prost. Uchenik vidit na konturnoj karte cifru 4 na ozere Bajkal. Sveryaetsya so spiskom. Vse verno. Stavit chertochku na chistom liste i tut zhe stiraet s karty chetverku. Karta stanovitsya chishche. Ostalos' proverit' eshche 19 nomerov. Okonchatel'nyj rezul'tat soobshchaetsya uchitelyu. Ko vsem, kto ne otmetil bolee treh naimenovanij, prikreplyayutsya individual'nye konsul'tanty, kotorye provodyat 2-3 kontrol'nye proverki po vsem 20 punktam. Bez zapisej. Odnim tol'ko pokazom. Esli uchenik ne dopuskaet bol'she oshibok, konsul'tant soobshchaet ob etom uchitelyu, i v special'noj vedomosti delaetsya otmetka: otvetil. A uroki idut dal'she do teh por, poka ne proizojdet nakoplenie eshche 20 ob容ktov. Kak vidim, vsya rabota zanimaet 15 minut. V konce uchebnogo goda - itogovaya proverka po vsem naimenovaniyam odnovremenno. Vremya raboty-11 minut. Vse ostal'noe idet tochno tak zhe. O predstoyashchej rabote nikogo ne preduprezhdayut. Ni o kakom ekzamene net i rechi. Deti i roditeli spokojny. No ekzamen-to sostoyalsya! On prodolzhalsya 11 minut. Byli oprosheny vse ucheniki po polnomu profilyu trebovanij. I takaya sistema otnoshenij v shkole stanovitsya normoj na urokah ne tol'ko geografii, no i vseh ostal'nyh uchebnyh predmetov. Vot pis'mo uchitel'nicy matematiki, odnoj iz uchastnic seminara po geometrii, provedennogo v Donecke v yanvare 1988 g. Pis'mo datirovano 31 iyulya 1988 g. "Eshche raz blagodaryu Vas za yanvarskij seminar. Teper' na uroki geometrii idu s ulybkoj: dlya detej net nichego interesnee geometrii. Dokazatel'stvo tomu - dosrochnyj ekzamen. 3 fevralya na baze drugoj shkoly byl proveden seminar po matematike, i mne bylo predlozheno dat' otkrytyj urok v neznakomom klasse. Na uroke prisutstvovali 28 matematikov, 19 geografov i inspektory rajono. Posle tret'ego povtora deti zagovorili, dokazyvali teoremy i reshili 9 zadach. V etom godu tretij ekzamen deti vybirali po zhelaniyu, i moi vybrali geometriyu. |kzamen proveli zadolgo do konca uchebnogo goda pryamo na uroke. O predstoyashchem ekzamene detej i ne preduprezhdali. CHleny komissii, v chisle kotoryh byli i rabotniki rajono, byli porazheny zhelaniem detej otvechat' eshche i eshche. Rebyata otvechali neskol'kimi gruppami, i vse proshlo ochen' bystro. Na predlozhenie komissii: "Deti, otdohnite" - oni horom: "A my ne ustali. Mozhno eshche odin biletik?" (V. N. Kizimova, s. Novoyulaska Orenburgskoj obl. Krasnogvardejskogo rajona). 21 maya 1979 g. na osnovanii prikaza No 199 ot 19 marta 1979 g. "O provedenii korrekturnyh srezov urovnej znanij uchashchihsya po geografii" Doneckim oblono byl vypolnen cikl kontrol'nyh izmerenij mezhdu eksperimental'nym V klassom srednej shkoly No 136, kuda na odin god byl perenesen eksperiment po geografii, i dvumya pyatymi klassami, gde rabotali luchshie uchitelya goroda. |to byli pyatye klassy shkol No 35 i 5. Itogi ekzamenov, provodivshihsya pod nablyudeniem zaveduyushchego kabinetom geografii Doneckogo oblIUU N. V. Donchenko i starshego nauchnogo sotrudnika O. YA. Cekinovskoj, okazalis' sleduyushchimi. Po nomenklature - 2270 : 994 : 450. Po reproduktivnym znaniyam - 425 : 282 : 189. Po prakticheskim umeniyam i navykam - 195 : 142 : 86. Po tvorcheskomu myshleniyu - 84 : 25 : 31. Vo vseh strochkah na pervom meste - rezul'taty eksperimental'nogo V klassa 136-j shkoly, na vtorom - 35-j, na tret'em - 5-j. Poyasnenie. V 1978/79 uchebnom godu, chtoby ogradit' ot predvzyatyh napadok vnov' naznachennogo direktora 136-j shkoly uchitelya-eksperimentatora R. 3. Zubchevskuyu, rukovoditel' eksperimenta byl vynuzhden vesti uroki geografii v etoj shkole. Nel'zya ne otmetit' eshche odnu osobennost' poluchennyh rezul'tatov. V kontrol'nyh klassah 35-j i 5-j shkol dva uchenika ne smogli najti na kartah ni odnogo geograficheskogo ob容kta. Net-net, karty byli ispisany, no Gimalajskie gory blagopoluchno perekochevali v Severnuyu Ameriku, a Kordil'ery - v Zapadnuyu Evropu. Severnoe more pereselilos' na mesto Ohotskogo, a Ohotskoe more stalo omyvat' berega Kuby. Eshche 16 uchenikov smogli otmetit' na kartah ot 1 do 6 ob容ktov. Vdumaemsya: u dvuh luchshih uchitelej geografii 18 rebyat v konce uchebnogo goda prakticheski nichego ne znayut dazhe v oblasti nomenklatury! A chto zhe togda delaetsya u vseh ostal'nyh? I nikogo - ni samih uchitelej, ni rabotnikov narobraza, ni ves' sostav akademii, ni mnogotysyachnye kollektivy nauchno-issledovatel'skih institutov - eto niskol'ko ne trevozhit. V eksperimental'nom klasse takih "chernyh dyr" ne bylo ni u odnogo uchenika. Naimen'shee kolichestvo pravil'no otmechennyh ob容ktov - 25. A kak zhe luchshie? Dva samyh vysokih rezul'tata v 35-j shkole: 65 i 52 ob容kta, a v 5-j - 63 i 49 ob容ktov (ves'ma pokazatel'noe shodstvo), v to vremya kak v 136-j 22 cheloveka pokazali rezul'taty luchshe samogo luchshego uchenika v dvuh kontrol'nyh klassah - ot 67 do 99 ob容ktov! Stoprocentnye rezul'taty pokazali Boldyrev Vova i Pyzhov Andrej - 99 iz 99. 98 ob容ktov otmetil Igor' Dobrohlebov, 92 - Anya Ajriyan i t. d. Analogichnymi okazalis' rezul'taty i po drugim parametram. S prakticheskoj rabotoj v eksperimental'nom klasse ne spravilas' tol'ko odna uchenica, v kontrol'nyh- 20 rebyat. Pis'mennuyu kontrol'nuyu v eksperimental'nom klasse vypolnili vse, a v kontrol'nyh klassah ona okazalas' neposil'noj dlya 14 rebyat. Privedem obrazcy biletov takoj raboty. 1-j bilet.
  • Pochemu proishodyat zemletryaseniya?
  • Kak otlichayutsya gory po vysote?
  • CHto takoe azimut? 2-j bilet.
  • Kak sejsmicheskim sposobom izuchaetsya vnutrennee stroenie Zemli?
  • Dat' kratkoe opisanie puteshestviya X. Kolumba.
  • Kakie zadachi reshayut uchenye-geografy v nastoyashchee vremya? 3-j bilet.
  • Kakova rol' iskusstvennyh sputnikov Zemli i kosmicheskih korablej v izuchenii Zemli?
  • CHto takoe geograficheskaya karta?
  • Na kakie gruppy delyatsya po proishozhdeniyu ostrova? Kazhdyj uchenik poluchil otlichnyj ot vseh drugih bilet, a vse bilety, vmeste vzyatye, ohvatyvali polnyj kurs geografii V klassa. Princip sostavleniya zadanij, vklyuchennyh v bilety, analogichen dlya kontrol'nyh rabot, provodyashchihsya v eksperimental'nyh klassah po vsem uchebnym predmetam. Ih cel' - vyyavit' obshchij uroven' usvoeniya programmnogo materiala klassom v celom i obnaruzhit' vozmozhnye probely. Potomu chto kachestvo znanij - eto prezhde vsego celostnost', sistemnost', t. e. osmyslennost' predstavlenij ob osnovnyh zakonomernostyah i ponyatiyah v ih vzaimosvyazyah, sostavlyayushchih uchebnye temu, razdel, kurs. Rabota s opornymi signalami, kak i eksperimental'naya metodika v celom, obespechivaet imenno takoe kachestvo znanij rebyat. Prichina nizkih rezul'tatov v kontrol'nyh klassah vovse ne v men'shej sposobnosti detej ili v neprofessionalizme uchitelej, a v slabosti tradicionnyh metodov obucheniya. I eto eshche odin ubeditel'nyj argument v preimushchestvah novoj metodiki. Esli est' bolee dejstvennoe oruzhie, stoit li derzhat'sya za privychnoe, no davno uzhe moral'no ustarevshee, izzhivshee sebya? Vot pochemu i edut v Doneck uchitelya.  CHem sto raz uslyshat'...  Zima 1980 g. v Doneckoj oblasti nachalas' nebyvalym snegopadom, i rejsovye avtobusy edva-edva probivalis' skvoz' snezhnye zavaly. V eti dni v Doneck priehal doktor psihologicheskih nauk 3. I. Kalmykova. V techenie 6 dnej ona poseshchala uroki vo vseh shkolah goroda i oblasti, gde uchitelya rabotali na osnove novoj metodiki. Uroki matematiki cheredovalis' s urokami istorii, uroki geografii - s urokami russkogo yazyka i urokami po osnovam Sovetskogo gosudarstva i prava. Sotni rebyat proshli za eti dni pered Zinaidoj Il'inichnoj - pyatiklassniki, shestiklassniki, vos'miklassniki, devyatiklassniki, i vsem im zadavalsya odin i tot zhe vopros: "Skol'ko vremeni vy tratite na podgotovku k urokam?" Vtroe men'she obychnogo - tak poluchalos' iz otvetov rebyat. No to - otvety, a kak obstoit delo v dejstvitel'nosti? I vot kazhdyj den' posle okonchaniya urokov uchenyj-psiholog ostavalas' s gruppami rebyat, chtoby izuchit' process podgotovki k urokam i opredelit' zatraty vremeni na vypolnenie zadanij po razlichnym uchebnym predmetam. 17 minut v srednem uhodilo u kazhdogo uchenika na podgotovku k odnomu uroku - takim okazalsya itog. I eto pri uslovii, chto deti zanimalis' v neprivychnoj obstanovke, kogda ryadom s nimi sideli neznakomye lyudi (vmeste s Zinaidoj Il'inichnoj nablyudeniya vela kandidat psihologicheskih nauk Galina Aleksandrovna Vajzer). Sovershenno ochevidno, chto 3. I. Kalmykovu i G. A. Vajzer interesovali ne tol'ko zatraty rabochego vremeni na podgotovku k urokam, no i drugie osobennosti uchebnoj deyatel'nosti rebyat. No pri chem zdes' snezhnaya zima, sprosit v容dlivyj chitatel'. A pri tom, chto Zinaida Il'inichna peredvigaetsya s pomoshch'yu kostylej, i mozhno predstavit', skol'kih sil stoili ej poezdki v perepolnennom ele odolevayushchem sugroby transporte na uroki uchitelej-eksperimentatorov ne tol'ko v shkoly Donecka, no i za 50 km v shkolu No 1 g. Kurahovo. No na vse eti trudnosti Zinaida Il'inichna prosto ne obrashchala vnimaniya, zahvachennaya interesom k nashej rabote, stremleniem uvidet' vse voochiyu, razobrat'sya v tom, chto vnosit v uchenie rebyat eksperimental'naya metodika. Vot chto takoe nastoyashchij uchenyj. I ob etom tozhe nuzhno znat' chitatelyu... Dva goda ponadobilos', chtoby perevesti na novuyu metodiku tol'ko odin predmet - geografiyu. Rebyata uzhe uchilis' v VII klasse, i poyavilas' vozmozhnost' izuchat' na novoj metodicheskoj osnove eshche odin predmet - istoriyu. CHtoby ne povtoryat' avtobusnyh mytarstv dvuhletnej davnosti, resheno bylo zainteresovat' uchitelej rabotoj po-novomu, otkryv vsem zhelayushchim dveri eksperimental'nogo klassa srazu posle osvoeniya rebyatami opornyh signalov po vsemu kursu istorii VII klassa. I snova, hotya programmnyj material zdes' ochen' ob容mnyj, byl poluchen znachitel'nyj vyigrysh vo vremeni. 50 listov s opornymi signalami ohvatili vse soderzhanie kursa. Eshche 6 listov potrebovalos' dlya istorii Ukrainskoj SSR i 3 lista dlya istorii rodnogo kraya - Doneckoj oblasti. Itogo - 59 listov. Dva dopolnitel'nyh uroka bylo vydeleno na obzornoe povtorenie i dva - dlya zaklyuchitel'nyh kontrol'nyh rabot. Itogo - 63 uroka, chto na 26 urokov men'she predusmotrennyh setkoj chasov dlya shkol Ukrainy (v VII klasse zdes' 2 uroka v nedelyu v pervom polugodii i 3 uroka v nedelyu vo vtorom). Moglo li eto ne privlech' dumayushchih uchitelej istorii? Tem bolee chto dlya nih, ka